Notice: Undefined variable: tableInfo in /home/bjhtjxdx.com/public_html/controllers/home.con.php on line 183
发布日期:2016-10-22 | 浏览次数: | 来源:admin

SPT15N是一款经济型电动步行式 / 半电动搬运车,额定载荷为1500kg。紧凑轻巧的车身设计,适合在仓库进行各种低强度负载的应用或在带有起重尾板的卡车上进行运输应用。
优势
· 低强度负载应用的理想解决方案。
· 内置式充电器,具高度自主性。
· 蓄电池电量表带有低电压自动切断提升动作的功能,延长了蓄电池寿命。
· 附加的稳定轮保证了车辆操作的稳定性。
主要特点
· 内置式充电器使操作更加自主,增大了工作范围。
· 附带的进入滚子保证车辆可轻松进入托盘,防止可能的损坏。
· 带有货叉加强结构的坚固车架。
· 经测试且符合人体工学的急停按钮和电量表更加坚固可靠。自带的蓄电池自动保护装置保证了蓄电池的长寿命。
· 经测试的国际品牌部件,例如传感器,微动开关,控制器和液压装置。
· 满足现行有效的欧洲标准,同时符合ISO 13849的性能等级。
· 经测试的国际品牌部件,例如传感器,微动开关,控制器和液压动力组件。
· 动力强劲的免维护蓄电池。
· 坚固的金属外罩保护了电机和车轮,同时也可靠的保护了操作者的脚部。
· 两侧的万向轮保证了车辆更高的稳定性并且防止地面受损。
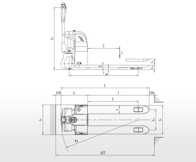
特性 | 1.2 | 型号 |
| SPT15N | |
1.3 | 动力 |
| 电动 | ||
1.4 | 操作方式 |
| 步行式 | ||
1.5 | 额定载荷能力 | Q (t) | 1.5 | ||
1.6 | 载荷中心距 | c (mm) | 600 | ||
1.8 | 前悬距 | x (mm) | 946 | ||
1.9 | 轮距 | y (mm) | 1279 | ||
重量 | 2.1 | 自重 | kg | 165 | 175 |
2.2 | 满载时桥负荷,驱动轮侧/承重轮侧 | kg | 458/1207 | 480/1195 | |
2.3 | 空载时桥负荷,驱动轮侧/承重轮侧 | kg | 130/35 | 140/35 | |
车轮、底盘 | 3.1 | 轮子 |
| 聚氨酯轮 | |
3.2 | 驱动轮尺寸 | Æ × w (mm) | Æ 220×70 | ||
3.3 | 前轮尺寸 | Æ × w (mm) | Æ 80×70 | Æ 80×93 | |
3.4 | 脚轮尺寸 | Æ × w (mm) | Æ50×30 | ||
3.5 | 轮子数量(驱动轮数为x)脚轮/前轮 |
| 1x +2/ 4 | 1x +2/ 2 | |
3.6 | 轮距(前面) 驱动侧 | b10 (mm) | 340 | ||
3.7 | 轮距(后面) 承重侧 | b11 (mm) | 380 | 525 | |
基本尺寸 | 4.4 | 提升高度 | h3 (mm) | 115 | |
4.9 | 作业时手柄高度,最小/最大 | h14 (mm) | 850 / 1295 | ||
4.15 | 货叉最低高度 | h13 (mm) | 85 | 80 | |
4.19 | 总体长度 | l1 (mm) | 1666 | 1736 | |
4.2 | 车体长度 | l2 (mm) | 516 | ||
4.21 | 车体宽度 | b1 (mm) | 560 | 705 | |
4.22 | 货叉尺寸 | s/e/l (mm) | 48/160/ | 48/160/ | |
1150 | 1220 | ||||
4.25 | 货叉外宽 | b5 (mm) | 540 | 685 | |
4.32 | 最小离地间隙 | m2 (mm) | 37 | 32 | |
4.34 | 直角堆垛通道宽度 800×1200,沿货叉放置 | Ast (mm) | 1961 | ||
4.35 | 转弯半径 | Wa (mm) | 1507 | ||
性能 | 5.1 | 行驶速度满载/空载 | km/h | 4.2 / 4.6 | |
5.2 | 提升速度满载/空载 | mm/s | - | ||
5.3 | 下降速度满载/空载 | mm/s | - | ||
5.8 | 爬坡能力满载/空载 | % | 4/10 | ||
5.1 | 行车制动 |
| 电磁制动 | ||
电机 | 6.1 | 驱动电机功率 | kW | 0.45 | |
6.2 | 提升电机功率 | kW | - | ||
6.3 | 电池根据DIN 43531/ 35/ 36 A, B, C, no |
| no | ||
6.4 | 电池电压/容量K5 | V/ Ah | 2×12V / 38 | ||
6.5 | 电池重量(+/-5%) | kg | 30 kg | ||
6.6 | 根据VDI循环的能耗 | kWh/h | - | ||
其他 | 8.1 | 驱动控制方式 |
| 直流速度控制 | |
8.4 | 驾驶员耳边噪音水平 | dB(A) | 69 | ||
联系我们
CONTACT___US北京弘途机械设备有限公司
公司门店:
大兴地址:北京市大兴区庞各庄镇
顺义地址:北京市顺义区马坡桥北路东
廊坊地址:河北省廊坊市经济开发区北环道后王各庄
天津地址:天津市北辰区淮河道2号地天泰工业园
网址:www.bjhtjxdx.com
邮箱:fanghongxi8888@163.com