Notice: Undefined variable: tableInfo in /home/bjhtjxdx.com/public_html/controllers/home.con.php on line 183
发布日期:2019-12-23 | 浏览次数: | 来源:admin

一、安全性:
1)整体焊接式车架,蓄电池沉底布置,使得整体结构强度高,重心低,稳定性好;
2)弯道自动减速功能;
3)门架下降缓冲装置,及前倾自锁装置,防止危险发生;
4)整车已通过CE认证。
二、先进性:
1)集成式组合显示仪表,具有直观参数显示和故障诊断功能,随时反馈叉车数据;
2)配备先进的进口交流控制器,对整车动作进行控制,同时具有再生制动和坡道防滑功能,让操作更安全、舒适;
3)意大利进口传动系统,采用新的设计,可靠性好,噪音低,具有效率较高的机械性、热效性。采用隔开室内一体化的湿式制动器,具有优良的制动性能、更高的效率和更低的维护成本;
4)采用双驱动、大功率交流电机作为行走动力,给叉车提高强劲的加速和爬坡动力,提高搬运效率;
5)采用大功率双电机作为工作系统动力,并经过电脑对电机转速进行优化控制,在提供强大的工作动力同时,降低能耗;
6)整车结构结果优化设计,具有更小的车身宽度、转弯半径,更低的重心,具有其它国产叉车无法比拟的通过性能、稳定性能和机动性;
7)整车可配备大容量蓄电池,可满足用户更长连续作业时间的需要(容量达80V/900Ah);
8)再生制动:叉车在制动、换向、下坡时,驱动电机变为发电机,为蓄电池充电,节能高效。
三、舒适性:
1)用动力助力的制动系统,使得整车操作更省力,制动更可靠;
2)根据人机工程学,设计可调式方向盘,可调试座椅,操作者可以根据需要选择驾驶位置;
3)多路阀侧置设计,操作更方便、舒适;
4)内置式倾斜油缸设计,充分增加操作人员的操作空间和舒适性;
5)超大操作空间以及优良的前后视野设计,保证操作更加舒适、安全;
四、可维修性
1)全开式机罩设计,使得叉车维护保养十分方便;
2)电气控制和液压管路统一布置,线路合理、维修方便。
型号 | 单位 | FE4D40 | FE4D45 | FE4D50 |
配置 | AC2 | |||
动力类型 | 电动 | |||
额定起重量 | kg | 4000 | 4500 | 5000 |
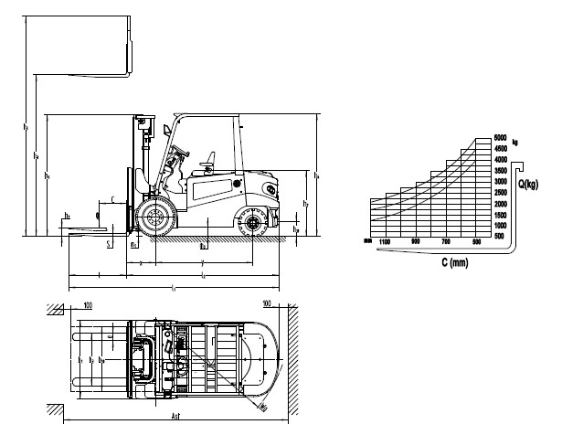
载荷中心距 | mm | 500 | ||
标准门架起升高度 | mm | 3000 | ||
护顶架高度 | mm | 2265 | ||
车体长度(不含货叉) | mm | 2776 | ||
车体宽度 | mm | 1450 | ||
转弯半径 | mm | 2500 | ||
行驶速度 满/空载 | km/h | 14/15 | 14/15 | 13.5/14.5 |
自重 (含蓄电池重量) | kg | 6635 | 6869 | 7245 |
联系我们
CONTACT___US北京弘途机械设备有限公司
公司门店:
大兴地址:北京市大兴区庞各庄镇
顺义地址:北京市顺义区马坡桥北路东
廊坊地址:河北省廊坊市经济开发区北环道后王各庄
天津地址:天津市北辰区淮河道2号地天泰工业园
网址:www.bjhtjxdx.com
邮箱:fanghongxi8888@163.com